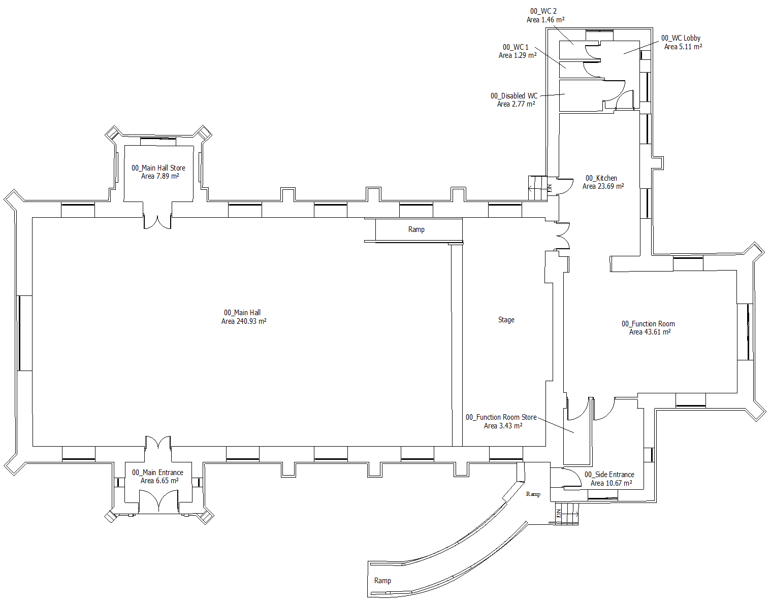
Type: Heritage Building
Client: St Thomas’ Church
Scanned: 2nd April 2025
Equipment used: BLK 360 G2
Measured Building Surveys
Millimetre precision - fast
We use cutting-edge scanning technology to deliver highly accurate floor plans, elevations, and sections for buildings without existing drawings — helping you unlock opportunities for conservation, regeneration, space planning, or simply understanding the true condition of a building.
Case Studies
Below are case studies showing how our one-stop, seamless service replaces the need for multiple consultants — we 3D-scan buildings, produce accurate drawings, and deliver energy and thermal modelling compliance all under one roof.
Download links: MEES Case Study | Heritage Case Study
Accreditations
LCC: LCC Simulation; LCC Building Design;
LCEA: LCEA EPC Level 3 and 4 EW∋ LCEA EPC Level 5 EW∋
OCDEA: On Construction Domestic Energy Assessments;
Find us on the CIBSE Energy Assessors Register and Elmhurst Energy Assessors Register

